Veelgestelde vragen - PVC ramen - Profielen
We hebben een aantal zaken voor u op een rij gezet.
Tussen welke profielen PVC ramen kunt u kiezen?
Creon Ramen heeft een raamprofiel en twee verschillende schuifraam profielen voor u beschikbaar. Elk profiel heeft zijn eigen specifieke kenmerken en uitstraling. Hieronder worden de verschillende profielen stuk voor stuk uitgelegd:
Profiel: Creon vlak profiel

Draai/kiep of kiep kozijn
Naar binnen draaiende deuren
Naar buiten draaiende deuren
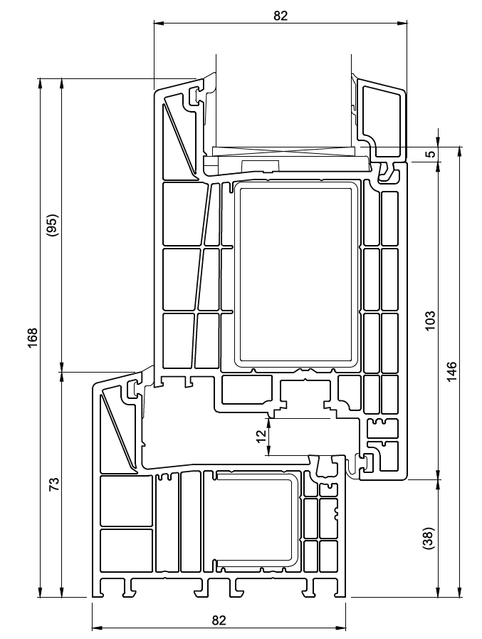
Het Creon vlak profiel is een goede keuze voor heden en toekomst. Dit profiel voldoet aan de hoogste isolatienormen van dit moment voor nieuwbouw. Daarnaast is dit profiel ook toepasbaar bij renovatie van bestaande woningen.
Details:
Het profiel is beschikbaar in de kleuren wit en crème wit. Daarnaast kunnen de ramen voorzien worden van een houtnerf folie waardoor het raam een houten uiterlijk krijgt. Dit profiel is alleen produceerbaar met een schuine las verbinding.
De diepte van dit profiel is 73 mm en is voorzien van twee rubberen afdichtingen t.b.v. de isolatie.
Details:
Download technische tekening van het onderdetail
Download technische tekening van het bovendetail
Download technische tekening van het tussendetail
Het EvolutionDrive profiel is systeem speciaal ontwikkeld voor schuiframen. Dit systeem is zeer geschikt voor kleinere afmetingen en zeer aantrekkelijk in de prijs. Dit systeem bieden wij aan in de kleur wit.
U kunt dit systeem bedienen door de klink 90 graden te draaien waarna u het systeem naar links of naar rechts kunt schuiven.
Het EvolutionDrive systeem is voorzien van 3 kamers. Dit systeem is standaard voorzien van een klink en cilinder aan beide zijden.

Het Kommerling Premidoor 76 profiel is zeer robuust systeem speciaal ontwikkeld voor schuiframen. In dit systeem is het mogelijk schuiframen te maken tot 5 meter breed en 2,40 meter hoog.

Dit systeem beschikt over een hefschuif functie. Doordat het schuivende gedeelte iets omhoog komt bij het openen, rolt het schuif gedeelte vrij licht.
Met dit systeem investeert u in gebruiksvriendelijkheid en een hoge isolatie waarde. Standaard wordt het profiel voorzien van hoogrendementsbeglazing welke een waarde heeft van 1.1 Ug (W/(m2K)). Wij raden het nadrukkelijk aan om het schuifraam te voorzien van gelaagd glas. Daarnaast is de Premidoor 76 geschikt om hier triple glas in toe te passen.
Dit systeem is standaard voorzien van een klink aan de binnenzijde en een komgreep aan de buitenzijde.
Denkt u tevens aan de plisse vliegendeur? Zo kunt u uw schuifraam in de zomer openen, zonder dat u vliegen binnen krijgt.
Heeft u nog vragen?
Neem contact op!