Veelgestelde vragen - PVC ramen - Onderdorpel
We hebben een aantal zaken voor u op een rij gezet.
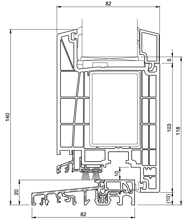
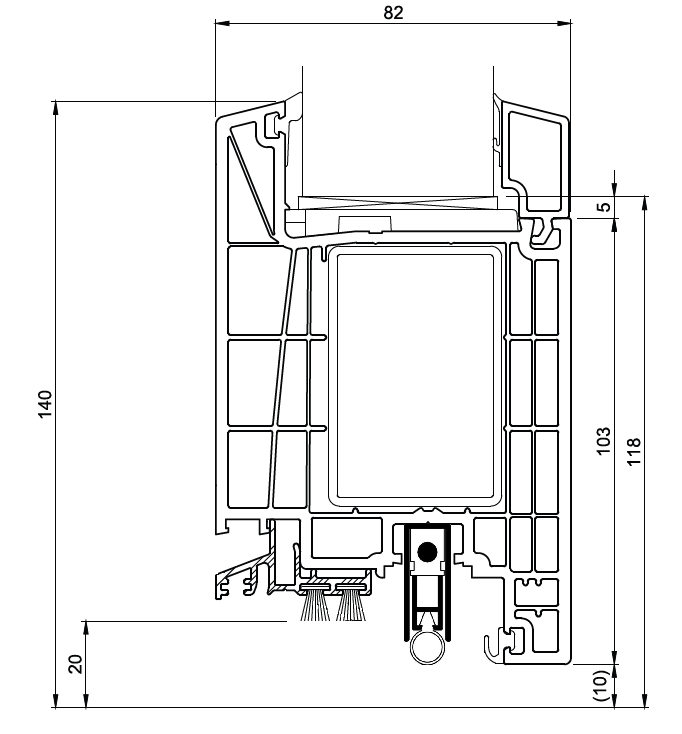
Verschillende soorten onderdorpels voor uw PVC deuren
Bij Creon heeft u voor PVC deuren keuze uit 3 verschillende onderdorpels. Zo heeft u keuze uit:

De aluminium onderdorpel is een aluminium profiel van ongeveer 2 centimeter hoog. Deze aluminium onderdorpel bevat meerdere kamers en is in combinatie met kunststof elementen geen koudebrug. Aan de buitenzijde wordt in het draaiende gedeelte van de deur een rubber voorzien, zodat het water niet binnen kan komen. Standaard is de kleur van de aluminium onderdorpel F1 (zilver).

Bij een doorlopend kader wordt aan de onderzijde hetzelfde profiel gebruikt als aan de bovenzijde. Het voordeel van een doorlopend kader is dat de deur een hoge winddichtheid en waterdichtheid heeft. Deze wordt bijvoorbeeld vaak gebruikt bij balkondeuren.

De valdorpel is een dorpel welke weggewerkt is in vleugel van de deur. Zodra u de deur sluit valt er een afdichting naar beneden. Zodra u de deur weer open doet, veert deze dorpel weer omhoog in de deur.
Klik hier om naar de vorige pagina te gaan
Heeft u nog vragen?
Neem contact op!