PVC Draai / kiep - Draai / kiep - Draai / kiep - draai / kiep raam
Bereken in 30 seconden de prijs van uw PVC Draai / kiep - Draai / kiep - Draai / kiep - draai / kiep raam
Binnenkant
Buitenkant
Bereken in 30 seconden de prijs van uw PVC Draai / kiep - Draai / kiep - Draai / kiep - draai / kiep raam
Gratis sample bestellen
Raam monster
U wilt graag ramen via de webshop bestellen, maar u zou graag de Raam ook een keer willen zien? Bestel dan een raam monster. Samen met uw monster wordt een kortingscode meegestuurd ter waarde van het monster. Indien u online ramen gaat bestellen, krijgt u dus de kosten van uw monster terug. Deze monsters zijn ongeveer 15 centimeter breed en zijn voorzien van een kader profiel en een vleugel profiel.
Beschrijving
PVC ramen: Draai / kiep - draai / kiep - draai / kiep - draai / kiep raam
Zijn uw ramen aan vervanging toe? Bedenk u dan geen moment en bereken in 30 seconden de prijs van een nieuw raam. Nooit meer verven en schilderen, maar wel met een top isolatiewaarde. Beschikbaar met zowel dubbel glas als Triple glas voor een nog hogere isolatie waarde. U hoeft slechts 5% te voorschot betalen en de rest betaald u met Bancontact bij levering.
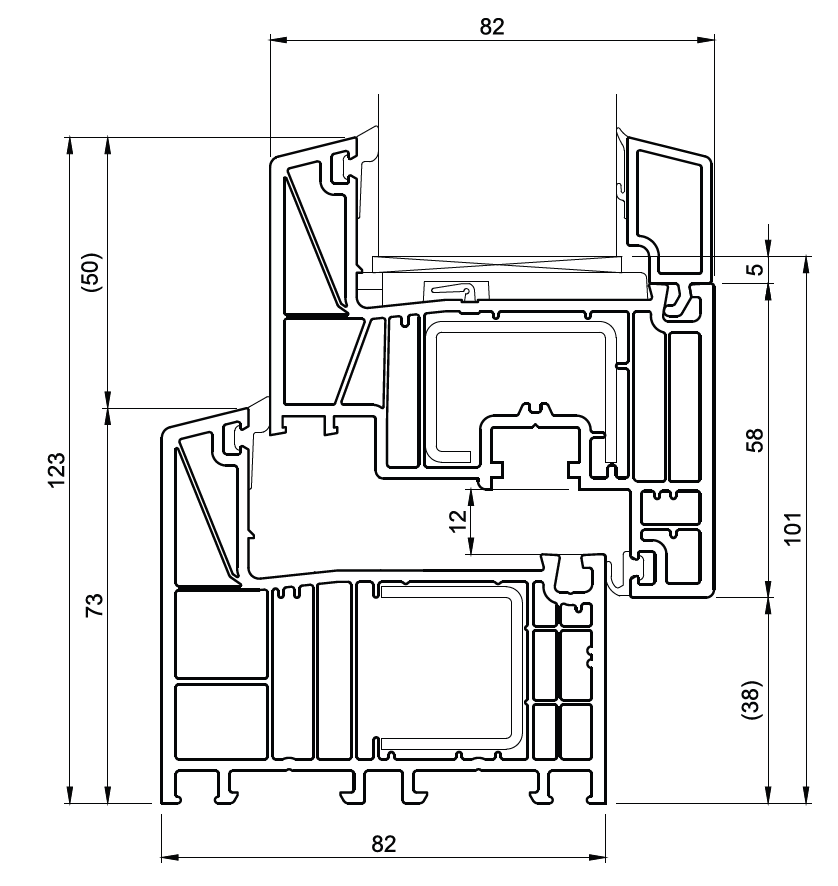
Profiel van het raam
De diepte van het profiel van uw raam is 82 mm en de verbinding is uitsluitend in verstek. Hieronder vindt u wat algemene informatie over het profiel:
- Afhankelijk van de afmetingen wordt het profiel uitgevoerd conform de WK2 inbraakwerendheid voorschriften.
- Het profiel is beschikbaar in de kleuren wit en crème wit.
- Mogelijkheid tot gebruik van houtnerf folie waardoor het raam een houten look krijgt.
- De houtnerf folie is beschikbaar in de kleur Antraciet grijs, Crème wit, Wit en Zwart
Technische tekening van profiel
Specificaties:
- Minimum breedte: 2100 mm;
- Maximum breedte: 3600 mm;
- Minimum hoogte: 600 mm;
- Maximum hoogte: 2400 mm;
Wilt u een raam bestellen met grotere afmetingen dan bovenstaande? Geen probleem, neem contact met ons op via het maatwerk formulier.
Wilt u graag meer algemene technische informatie over profielen, het beschikbare glas, kleuren of andere technische aspecten van de PVC ramen, kijk dan snel op technische informatie over PVC ramen.
Wilt u eerst graag het materiaal en de kleur in het echt zien? Dat begrijpen wij! U kunt daarom een monster bestellen van uw product.
Contact
Wilt u meer informatie over dit product of over het bestellen hiervan? Onze medewerkers staan voor u klaar. Neem telefonisch contact met ons op via 050 - 580 161 of stuur uw vraag in via het contactformulier.
Reviews
5 sterren
0 reviews
4 sterren
0 reviews
3 sterren
0 reviews
2 sterren
0 reviews
1 ster
0 reviews
Levertijd
Levertijd
PVC ramen / deuren / Evolutiondrive schuifraam Weken - 4 a 10 *Nauwkeurige levertijd inzichtelijk in winkelwagen
Prijzen
Prijzen worden altijd inclusief BTW vermeldt en exclusief verzendkosten. In de winkelwagen wordt de totaalprijs inclusief verzendkosten getoond.
Maak een account aan
Log in
Ontvang een gratis monster
E-mailadres *
Wachtwoord *
Account aanmaken
E-mailadres *
Wachtwoord *
PVC Draai / kiep - draai / kiep - draai / kiep - draai / kiep raam
5 sterren
0 reviews
4 sterren
0 reviews
3 sterren
0 reviews
2 sterren
0 reviews
1 ster
0 reviews